Icons representing 3 bedrooms, 1 living room, 2 bathrooms, 2 showers, 2 garages, and total area of 158 square meters.

Camiguin

Modern kitchen with wooden cabinets, marble island, pendant lighting, stainless steel refrigerator, and artwork on white walls.

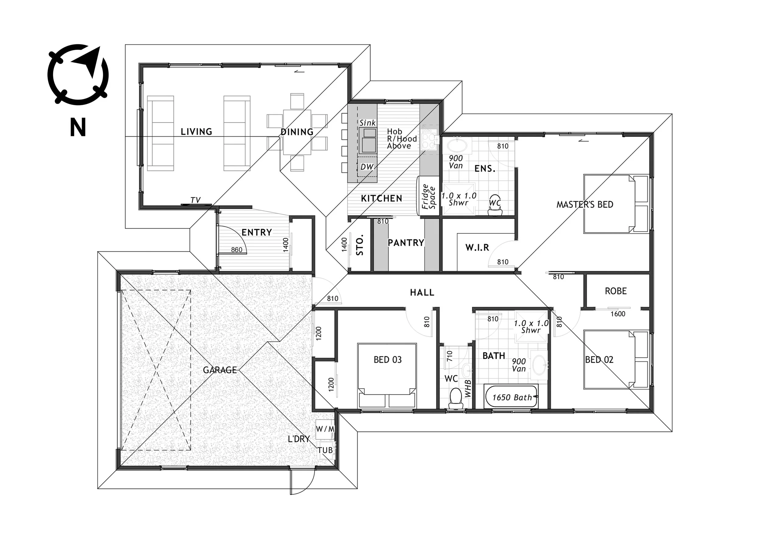
The home boasts three bedrooms (master with ensuite floor and walk-in wardrobe + access to patio), family bathroom, separate toilet and stylish, well-appointed kitchen with plentiful storage, bench space and a generous walk-in pantry.

  • Stone schist exterior cladding feature

    Digital touchpad doorlock

    Bosch kitchen appliances

    Engineered stone kitchen bench top

    Master bedroom with walk-in robe & ensuite

    Fully tiled shower with niche

    Freestanding bathtub

    55 oz. carpet with 11mm underlay

    Vinyl planks to entry, kitchen and pantry

    LED lighting

    Garage carpet

    Clothesline and letterbox

    Exposed Aggregate driveway and patio

Talk to us today

View other plans

Modern single-story house with a black garage door, wooden and brick exterior, surrounded by landscaped garden with flowers and grass, under a cloudy sky.
Icons representing a bed, sofa, toilet, shower, and garage with numbers 3, 1, 2, 2, and 2 beneath them, along with house and map icons, and area measurements of 173.37 square meters and 655 square meters.
Cagayan De Oro
Modern single-story house with white brick walls, black metal roof, black garage door, and front yard with green grass, landscaped garden with flowers, and pathway with lights.
Icons representing a king-size bed with three people, a sofa with one person, a toilet with two people, a shower with two people, and a garage with two people, along with the area sizes of 174.31 square meters and 765 square meters.
Cebu
Modern house with dark brick exterior, well-lit front yard, manicured lawn, concrete driveway, garden beds with shrubs, trees, and flowers, wooden fence, and a bright sky during sunset.
Icons showing 3 bedrooms, 1 living room, 2 bathrooms, 2 car garages, and 2 car parking, with total area of 168.50 square meters and outdoor area of 680 square meters.
Palawan
Modern single-story house with dark gray brick exterior, a black garage door, and well-maintained front yard with grass, shrubs, and garden beds illuminated by outdoor lights, under a clear blue sky.
Icons representing a bed, sofa, toilet, shower, and garage with the numbers 3, 1, 2, 2, and 2 beneath them. Text indicating total area of 168.08 square meters and garage area of 645 square meters.
Bohol